E1351 Leverkusen – Exklusives Wohnen in parkähnlicher Lage
Objektnummer: E1351
Wir bieten Ihnen eine außergewöhnliche Neubauwohnung in begehrter, zentrumsnaher Wohnlage im Leverkusener Stadtteil Wiesdorf.
Das lebenswerte Wohnviertel und insbesondere diese grüne Gegend, die durch historische Stadtvillen mit imposanten Gärten und altem Baumbestand geprägt ist, zählen zu den bevorzugten Adressen der Stadt. Eine ideale Umgebung für ein hochwertiges Stadtdomizil.
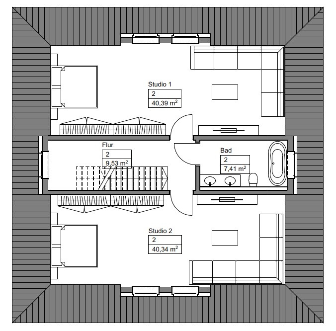
Bei diesem Angebot handelt es sich um eine großzügige Eigentumswohnung die das gesamte Obergeschoss und Dachgeschoss des Hauses einnimmt. Das architektonisch reizvolle Neubauvorhaben mit nur zwei exklusiven Wohneinheiten entsteht auf einem ca. 570 m² großen Baugrundstück in optimaler Südwestausrichtung.
Objektdaten:
-Leverkusen-Wiesdorf/Wohnpark/denkmalgeschütztes Wohngebiet
-innenstädtische, gehobene und ruhige Wohnlage in gewachsener Wohnsiedlung
-Grundstücksfläche: ca. 570 m²/Baulücke
-moderne Stadtvilla mit zwei komfortablen, eigenständigen Einheiten,
jeweils auf zwei Wohnebenen aufgeteilt
Lage im Objekt/Wohnfläche:
-gesamtes Obergeschoss und Dachgeschoss mit großem Balkon und herrlichem Blick ins Grüne
-ca. 193 m² Wohnfläche zzgl. Nutzfläche
Ausstattung:
-Effizienzhaus-Standard KfW 40 plus
-Photovoltaikanlage
-Luftwärmepumpe
-kontrollierte Be- und Entlüftung mit Wärmerückgewinnung
-Fußbodenheizung
-Designerbäder
-bodentiefe Fensterelemente
-hohe Räume
-Wallbox
Besonderheiten:
-Ein außergewöhnliches Objekt mit nur zwei Wohneinheiten.
-Freie Raum- und Grundrissgestaltung nach individuellen Wünschen – Sie bestimmen Materialien und Ausstattung.
-Eine qualifizierte Betreuung des Bauvorhabens ist möglich.
-Das Areal ist voll erschlossen.
-kein Bauträgerprojekt
Wichtiger Hinweis!
Die Baugenehmigung und die Teilungserklärung für das Projekt liegen bereits vor. Der Baubeginn ist kurzfristig möglich.
Verkehrsanbindung:
Perfekte Erreichbarkeit der internationalen Flughäfen Köln/Bonn und Düsseldorf sowie direkte Anbindung an die Autobahnen A3, A1 und A59 in wenigen Fahrtminuten – ideal für Berufspendler und Vielreisende.
Ob als Kapitalanlage oder zur Eigennutzung – dieses Projekt bietet ein außergewöhnliches Wohnerlebnis in bester Lage. Lassen Sie sich begeistern von Raum, Technik und Natur im Einklang.
Der Gesamtkaufpreis dieser großzügigen Eigentumswohnung beläuft sich inklusive Grundstück auf 929.000 Euro.
Sollten wir Ihr Interesse geweckt haben, bitten wir Sie um Kontaktaufnahme, damit der zuständige Projektleiter Sie in einem persönlichen Gespräch unverbindlich und kostenfrei über das attraktive Neubauprojekt ausführlich informieren kann.
Eine Grundstücksbesichtigung kann nach Terminvereinbarung kurzfristig durchgeführt werden.
Durch Prüfung und Verwertung unseres Angebots kommt ein Maklervertrag zu den beigefügten Vertragsbedingungen zustande. Bei Abschluss eines Kaufvertrags ist eine Käufercourtage in Höhe von 3 % des Kaufpreises zzgl. gesetzlicher Mehrwertsteuer an uns zu zahlen.
Alle Angaben sind ohne Gewähr und basieren ausschließlich auf Informationen, die uns von unserem Auftraggeber übermittelt wurden. Wir übernehmen keine Gewähr für die Vollständigkeit, Richtigkeit und Aktualität dieser Angaben. Irrtum und Zwischenverkauf vorbehalten.
Für nähere Auskünfte, weitere Objektunterlagen sowie Besichtigungstermine stehen wir unter der angegebenen Telefonnummer zur Verfügung.
GFB Mädel Projekt- u. Immobilien GmbH
Bielefeld – Musikerviertel
Beethovenstraße 10
33604 Bielefeld
Tel.: 0521 209880
E-Mail: info@gfb-maedel.de
