VERMIETET – M1361 Bielefeld Innenstadt – ruhig und zentral!
Objektnummer: M1361
Werden Sie jetzt Mieter einer von Grund auf hochwertig sanierten und stilvoll modernisierten Wohnung. Diese charmante Altbauwohnung befindet sich in zentraler dennoch äußert ruhiger Wohnlage der östlichen Innenstadt. Der fast vor der Haustür befindliche Ostpark, der Jakobuskirchplatz mit wöchentlichem Markt und die fußläufig erreichbare Bielefelder Altstadt, in Verbindung mit einer optimalen Verkehrsanbindung, sprechen für diese gefragte Wohnlage.
Die hier angebotene Einheit liegt im Erdgeschoss eines um die vorletzte Jahrhundertwende errichteten, im Jahr 1949 komplett neu aufgebauten und im Jahr 2022/23 kernsanierten Stadthauses.
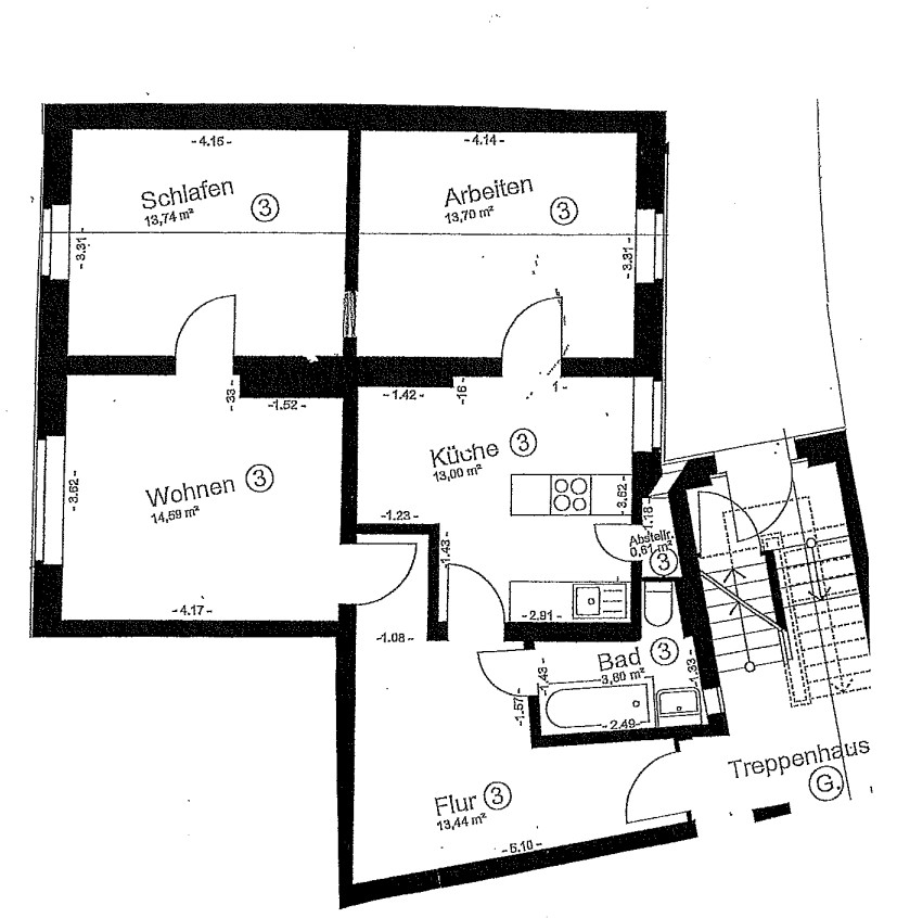
Der klassische Grundriss mit einer Wohnfläche von ca. 73 m² teilt sich auf in einen gemütlichen Wohnbereich, zwei gut bemaßte Schlafräume, eine große Wohnküche, ein modernes und tagesbelichtetes Badezimmer mit Dusche und eine geräumige, zentrale Wohndiele.
Im Zuge der im Jahr 2022/23 durchgeführten Sanierungsmaßnahmen in dieser Wohneinheit wurden alle Fensterelemente inklusive Rollläden ausgetauscht und helle Marmorfensterbänke eingesetzt, sämtliche Wasser- und Elektroleitungen erneuert, neue Innentüren, eine neue Wohnungstür sowie eine Freisprechanlage installiert, einheitliche Fußbodenbeläge in Form von massiven Echtholzdielen verlegt, das Badezimmer stilvoll und zeitgemäß mit einer großen Glas-Duschkabine, modernen Porzellanobjekten und einem weißen Handtuchradiator gestaltet, alle Wände mit Glattputz und einer hochwertigen Vliestapete versehen.
Auch das Stadthaus selbst wurde einer Neugestaltung unterzogen und gemäß den Anforderungen an den energetischen Standard KfW-Effizienzhaus 55 saniert. Im Jahr 2000 wurde bereits die Neueindeckung des Daches inklusive Dämmung durchgeführt, im Jahr 2023 wurde die Außenfassade mit einer Dämmung und einem modernen Anstrich versehen. Des Weiteren wurde ebenfalls im Jahr 2023 das gesamte Treppenhaus dem Stil des Baujahres entsprechend aufwendig saniert sowie eine moderne Hauseingangstür eingebaut. Zudem wurden die Außenanlagen einer Neugestaltung unterzogen und mit einem grauen Pflasterstein einheitlich belegt sowie ein dekorativer, mit immergrüner Bepflanzung versehener Vorgarten angelegt.
Die Beheizung des Gebäudes erfolgt umweltfreundlich und bequem über das Fernwärmenetz der Stadt Bielefeld. Den Bewohnern dieser schönen Wohnung steht in dem ebenfalls modernisierten Kellergeschoss ein eigener Kellerraum zur Verfügung. Die Gemeinschaftsräume wie der Wasch- und Trockenraum sowie der Fahrradkeller können mitgenutzt werden.
Im Hinterhof steht den Mietern des Hauses eine mit Gartenmöbeln ausgestattete Freisitzfläche zur Verfügung.
Der gute Mix aus ruhiger, innenstädtischer Wohnlage mit optimaler Verkehrsanbindung, vielfältigen, fußläufig erreichbaren Dienstleistungsangeboten und die abwechslungsreichen Freizeitgestaltungsmöglichkeiten in unmittelbarer Nähe sprechen für diese interessante Immobilie.
Die Wohneinheit steht ab dem 01.10.2025 oder früher nach Bedarf zur Verfügung.
Die monatliche Kaltmiete beläuft sich auf 800,- EUR, zzgl. 120,- EUR Nebenkosten.
Eine Mietkaution bzw. eine Bankbürgschaft in Höhe von drei Monatskaltmieten ist an den Vermieter zu entrichten.
Für nähere Auskünfte, weitere Objektunterlagen sowie Besichtigungstermine stehen wir Ihnen in unseren Büroräumen unter folgender Anschrift gern zur Verfügung:
GFB Mädel Projekt- u. Immobilien GmbH
Bielefeld – Musikerviertel
Beethovenstr. 10
33604 Bielefeld
Tel.: 0521 209880
Fax: 0521 2098820
E-Mail: info@gfb-maedel.de
